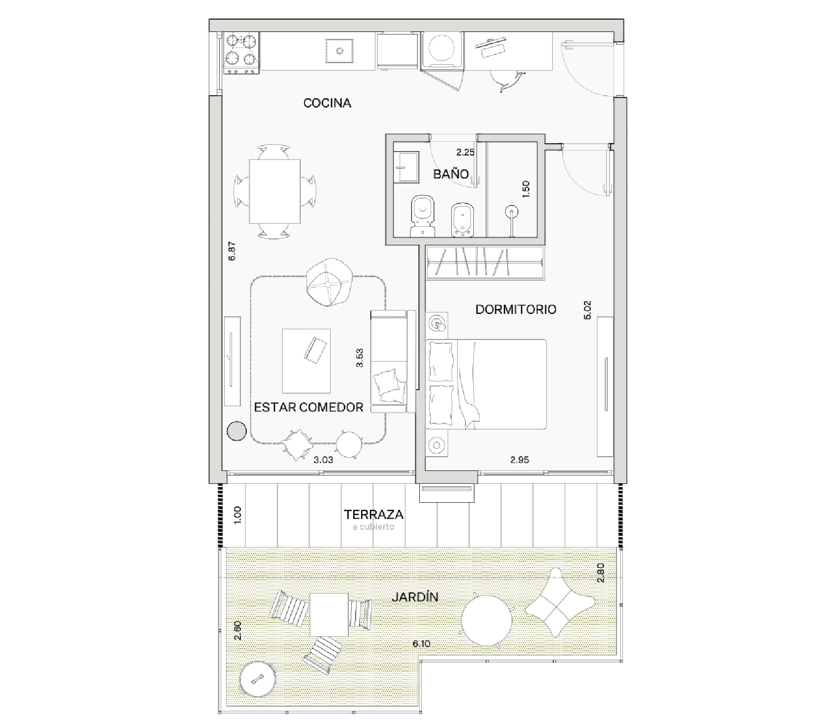
Cocina con mesadas de Quarzo y piletas de acero inoxidables / instalación prevista para A/A frío-calor en living y dormitorio / aberturas en aluminio anolock negro / revestimientos de porcelenato y cerámicas / piso vinílico imitación madera en estares, dormitorios y cocinas / muebles sobre y bajo mesada cuando corresponda
Áreas APPCU
Áreas propia:
100% de bienes propios de la unidad.
Muros:
100% Muros exteriores.
100% Muros separativos con áreas comunes.
50% Muros separativos entre unidades y medianeras.
Ductos:
100% Ductos que se ubiquen en la unidad.
Terrazas:
100% del área de la terraza incluyendo muros perimetrales y parrilleros.
Áreas común:
100% del área del jardin incluyendo muros perimetrales
Jardín:
Cuotaparte de los bienes comunes del piso.